 |
| The Palisander Drawing Room. |
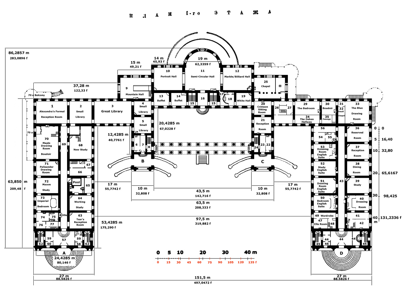
The Alexander (Alexandrovsky) Palace - generally considered the favorite home of the last Imperial family of Russia, and where they spent the first five months of their captivity after the start of the Revolution - was commissioned by Catherine the Great for her favorite grandson, the future Alexander I, on the occasion of his marriage. It was built to the design of Giacomo Quarenghi and constructed between 1792 and 1796. After his accession in 1801, Alexander chose to reside in the nearby - and larger - Catherine Palace and gave the Alexander Palace to his brother, the future Nicholas I, for summer usage. From that time it was the summer residence of the heir to the throne; even after coming to the throne, Nicholas I was very attached to the building, though his successors less so. Several members of the family would die while in residence, and the future Nicholas II was born there in 1868.
 |
| Another view of the Palisander Drawing Room. |
 |
| The Imperial bedroom. |
 |
| Another view of the Imperial bedroom. |
It was Nicholas and his wife, the Empress Alexandra, who would make the biggest impact on the palace, and the home life they established there has become an enduring part of their legend. With a growing, close-knit family, the Empress devoted much energy to the redecoration of the private rooms. Designed in a mix of late Victorian, Art Nouveau, and an Edwardian neoclassicism, the rooms were always filled with flowers, the tables and shelves laden with art objects and framed photographs. Though the renovations would be much criticized by the Empress' detractors for being middle class and insufficiently "Imperial", the rooms as they were then had a feminine charm and, most importantly for her and her family, were pretty, cozy, and practical.
 |
| The Mauve Study, aka "the Mauve Boudoir", "the Lilac Study". |
 |
| Another view of the Mauve Study. Although these rooms still seem quite full by modern standards, many items have already been removed. |
 |
| The Maple Drawing Room. |
 |
| Another view of the Maple Drawing Room. The plants have yet to be removed from the room. |
Soon after the Imperial family was transported to Siberia in August of 1917 the palace was turned into a museum; it continued as such until the beginning of the Second World War. Tsarskoe Selo was occupied during the war, and the palace was used as headquarters for the German military command. In the German's retreat, when so many other Imperial residences were burned - including the adjacent Catherine Palace - the Alexander Palace, though looted and heavily damaged, was spared destruction. The real destruction
came
after the war, when most of the historic interiors vanished, the rooms altered to make up plain exhibition halls for a proposed museum to Pushkin. When that plan came to nothing, the building was turned over to the use of the Soviet Navy. At the end of the twentieth century, with Perestroika, the fall of the Soviet Empire, and an increasing interest in Russia's last Imperial family, the Navy was finally induced to vacate. A museum dedicated to the family was soon instituted and important restoration work began immediately - the structure was in a precarious state - and continues to this day. In 2015 the museum was closed to the public for a major renovation, a multi-year project to include, among other things, the recreation of the private rooms of the Nicholas and Alexandra.
 |
The Empress' Formal Reception Room.
The large portrait at center is a tapestry copy of Vigée Lebrun's celebrated group of Marie Antoinette and her children, a gift
from the French government. Rather an unfortunate choice, considering the similarly unpleasant fate of the two women.... |
 |
| The Small Library/Dining Room. (I believe this image has been reversed.) |
 |
| The Portrait Hall. |
 |
| The Marble/Billiard Hall. |
***
A series of Autochromes, 140 in total, were made in 1917 by the military photographer Andrei Zeest, who had been commissioned by the art historian George Loukomski, Head of the Tsarskoe Selo Inventory Commission. The views of the Catherine Palace were taken in June-July of 1917, and the Alexander Palace interiors were photographed in August-September, soon after the Tsar's family was sent into exile. Now that a comprehensive restoration of the palace is under way, the detail-rich Autochromes have become one of the most important resources for the museum workers, restorers, and historians. The larger number of the Autochrome plates were taken out of Russia when Loukomski emigrated in 1918. About 40 Autochromes featuring the palaces were added to the Tsarskoe Selo collection in the 1960s, received from Andrei Zeest's widow.
***
 |
| Click to expand. |
 |
| The Alexander Palace in 1840. |